Häuser in Langweid Village |
Familie .Freizeit .Natur
Unsere Häuser
Reihenhäuser / Doppelhaushälften
Im Baugebiet Langweid Village verbinden sich Natur und Alltag auf ideale Weise: Hier leben Sie im Grünen, genießen Ruhe und Freiraum und profitieren zugleich von einer hervorragenden Verkehrsanbindung nach Augsburg und in die Region.
Familien finden viel Platz zum Leben und Spielen, Pendler schätzen die kurze Anbindung an die B2 und die Bahnlinie, und Freizeitliebhaber freuen sich über nahegelegene Rad- und Spazierwege.
Mit durchdachter Planung und hochwertigen Materialien entsteht hier Wohnraum, der langfristig überzeugt . Ein Zuhause, das Naturverbundenheit und Komfort vereint.
Die benachbarte AWO-Kita in Langweid ist für den Deutschen Kita-Preis 2026 nominiert. Ein starkes Argument für Familien und die Wertstabilität Ihrer Wohnung.
Überblick über aktuelle Angebote an
Reihenhäuser/Doppelhaushälften
Haus 1
Wohnfläche: 152,75 m²
VERKAUFT
Haus 4
Wohnfläche: 151,48 m²
VERKAUFT
Reihen-/Doppelhäuser Langweid
4. BA
Überblick
6 Doppelhaushälften und 9 Reihenhäuser in Effizienzhaus EH55 (GEG2024) in Langweid am Lech
Knapp über 150 m² Wohnfläche mit großzügigen (Dach-)Terrassen
Große Garage (ca. 3,5 x 6 m) und ein PKW-Stellplatz zu jedem Haus
natürliche Massivbauweise mit Hochdämmziegel
moderne Luft/Wasser Wärmepumpen Technik für Warmwasserbereitung/Heizung
Fußbodenheizung mit Einzelraumregelung
bedarfsgeführte Lüftungsanlagen mit Wärmerückgewinnung
hochwertige Ausstattung wie z.B. Acrylbadewannen, bodentiefe Duschen und Parkettböden
Gebäude
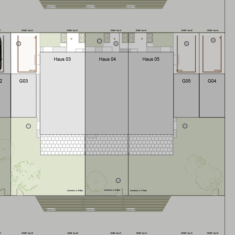
Lageplan
Unsere Grundrisse sind so gestaltet, dass sie den Alltag erleichtern und gleichzeitig Raum für Individualität lassen. Helle Wohnbereiche, gut nutzbare Abstellflächen, klar strukturierte Räume und harmonische Übergänge zwischen Innen und Außen sorgen für ein stimmiges Wohngefühl – vom ersten Moment an.
Gesamtübersicht
Aussenanlagen
Ob 2-Zimmer-Wohnung oder Familienlösung mit Garten: Alle Einheiten sind funktional durchdacht und architektonisch klar geplant. Wer sich früh entscheidet, hat außerdem die Möglichkeit, individuelle Wünsche bei der Ausstattung zu berücksichtigen – gerne beraten wir dazu persönlich.
Dumberger. Werte.
Ausstattung
Die Ausstattung der Dumberger-Wohnungen verbindet hochwertige Materialien mit durchdachter Funktionalität.
In unserem hauseigenen Musterraum wählen Käufer die Details ihrer neuen Wohnung individuell aus – von stilvollen Bodenbelägen über moderne Sanitärausstattung bis hin zu stimmigen Farbkonzepten. Dabei stehen erfahrene Fachberater zur Seite und begleiten den gesamten Bemusterungsprozess persönlich. Verbaut werden ausschließlich geprüfte Produkte namhafter Hersteller, die Qualität, Langlebigkeit und zeitgemäßes Design vereinen.
So entsteht ein Zuhause, das nicht nur zur Architektur passt – sondern vor allem zu den Menschen, die darin leben.
Dumberger. Werte.
Energiekonzept
In Kombination mit hochwertiger Dämmung und durchdachter Gebäudetechnik schaffen wir so Wohnräume, die energetisch auf dem neuesten Stand sind – leise, sauber und wirtschaftlich im Betrieb. Unsere Bauvorhaben erfüllen hohe Standards und orientieren sich konsequent an den Anforderungen von morgen.
Nachhaltig bauen heißt bei Dumberger: Technik einsetzen, die funktioniert. Und Verantwortung übernehmen, die weiter reicht als bis zur Schlüsselübergabe.
Langweid am lech
Lage der Immobilie
Die einstige Römer-Siedlung Langweid am Lech bietet ihren rund 8.000 Bewohnern Wohnen im Grünen mit schneller Anbindung an die Großstadt. Hier begegnen sich ein vielfältiges Freizeit-Angebot, eine ausgezeichnete Infrastruktur und die grandiose Landschaft des Naturparks Westliche Wälder. Aber lesen Sie selbst: www.langweid.de
Die vierspurig ausgebaute Bundesstraße B2 direkt vor Langweids Haustür bringt Autofahrer schnell und bequem nach Augsburg oder nach Donauwörth.
Der Anschluss zur Autobahn A8 München-Stuttgart liegt gerade mal acht Kilometer entfernt.
Zugfahrer aufgepasst: Langweids Bahnhof liegt auf der Bahnstrecke Augsburg-Nürnberg und wird vom Baugebiet „Langweid Village“ auch gut zu Fuß erreicht. Eine Zugfahrt nach Augsburg dauert nur knappe 15 Minuten.
Nicht zuletzt überzeugen Langweid und Umgebung mit einem gut ausgebauten Netz an Linienbussen. Eine der vielen Bushaltestellen liegt gleich um die Ecke an der Foretstraße im Baugebiet „Langweid Village“.
Die Infrastruktur
Nur wenige Minuten reichen aus, um zu Fuß den Bedarf des täglichen Lebens oder die Kinder zum Kindergarten bzw. in die Schule zu bringen. Vier Kindergärten und ebenso viele Krabbel- bzw. Mutter-Kind-Gruppen sowie die Grund- und Mittelschule (mit Ganztagsangebot) sorgen für beste Bildung und Betreuung der Kleinsten.
Ihre Ansprechpartnerin
Simone Fink
Gerne steht Ihnen Frau Fink telefonisch oder in einem persönliches Informationsgespräch für all Ihre Fragen zur Verfügung.
Vertrieb
Tel. +49-8231-6006-30
E-Mail: vertrieb@dumberger-bau.de
Drohnenaufnahmen
Videos
Unsere Videos geben Ihnen mehr als nur einen Überblick: Sie zeigen Perspektiven, die man sonst nicht sieht – von oben, von innen, aus dem echten Leben. Ob Drohnenflug über das Baugebiet oder Einblicke direkt von der Baustelle – erleben Sie, wie bei Dumberger Wohnraum entsteht, der Substanz hat.
Kontakt
M. Dumberger Bauunternehmung
GmbH & Co. KG
Hunnenstr. 20
86343 Königsbrunn
Immobilienanfragen:
Tel. +49-8231-6006-30
E-Mail: vertrieb@dumberger-bau.de
Allgemein:
Tel. +49-8231-6006-0
E-Mail: info@dumberger-bau.de
Service
Folgen Sie uns auch auf:







