SCHWABMÜNCHEN –
WOHNRESORT ALTMÜHLSTRASSE |
4 moderne Doppelhäuser / 8 Doppelhaushälften nach Effizienzhaus 55
Unsere Häuser
Doppelhaushälften
Ankommen, durchatmen und das Leben genießen. In der Altmühlstraße in Schwabmünchen entstehen vier attraktive Doppelhäuser oder acht Doppelhaushälften, die modernes Design mit höchstem Wohnkomfort vereinen. Gebaut in bewährter Massivbauweise und zertifiziert als Effizienzhaus 55, bieten diese Immobilien nicht nur ein nachhaltiges Zuhause, sondern auch eine wertstabile Investition in Ihre Zukunft. Ein Energieausweis wurde bereits beauftragt und liegt zur Besichtigung vor.
Die Architektur besticht durch eine klare Linienführung und hochwertige Details wie die edle Holzlamellen-Verkleidung im Eingangsbereich. Ob für die wachsende Familie oder als renditestarkes Anlageobjekt: Hier finden Sie den Freiraum, den Sie suchen. Dank modernster Glasfaser Anbindung sind Sie technologisch bestens vernetzt – ideal für Home-Office und digitales Entertainment auf hohem Niveau.
Darstellung aus Sicht des Illustrators
Überblick über aktuelle Angebote an
Doppelhaushälften
Darstellung aus Sicht des Illustrators
Doppelhaushälften Schwabmünchen
Überblick
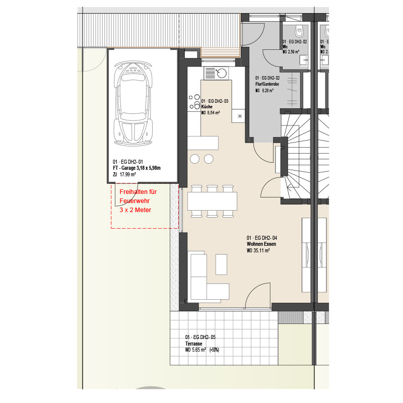
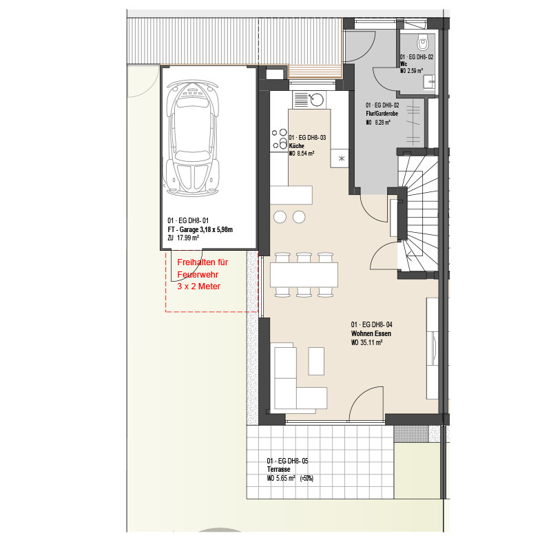
8 Doppelhaushälften oder 4 Häuser nach Effizienzhaus 55 (gem. Gebäudeenergiegesetz GEG)
Großzügige 5-Zimmer-Haushälften
Garagen- und Außenstellplätze verfügbar
Studio im Dachgeschoss
Direkter Zugang zur Terrasse und eigenem Gartenanteil
CO2-arme Nahwärme aus hocheffizienter lokaler Erzeugung
kontrollierte Wohnraumlüftung
Fußbodenheizung mit Einzelraumregelung
hochwertige Ausstattung wie z.B. Acrylbadewannen, bodentiefe Duschen oder Parkettböden
Gebäude
Lageplan
Der Lageplan der Doppelhaushälften in Schwabmünchen schafft eine klare und übersichtliche Orientierung im Quartier. Die Gebäude sind stimmig entlang der Altmühlstraße positioniert und fügen sich harmonisch in das bestehende Wohnumfeld ein. Durch die durchdachte Anordnung von Zufahrten, Wegen und Freiflächen entsteht ein strukturiertes und zugleich angenehmes Gesamtbild.
Dumberger. Werte.
Ausstattung
Im Inneren erwartet Sie ein Zusammenspiel aus Eleganz und Funktionalität. Edles Eichen-Echtholzparkett in den Wohnräumen sorgt für natürliche Wärme, während großformatige Steinzeugfliesen in den Fluren und Bädern moderne Akzente setzen.
Für ein perfektes Raumklima zu jeder Jahreszeit sorgt die zentrale Wohnraumlüftung mit Wärmerückgewinnung, während die energieeffiziente Fußbodenheizung – gespeist durch lokale Nahwärme – für behagliche Wärme sorgt.
Hochwertige Materialien und smarte Technik
für ein kompromissloses Wohlfühlambiente.
- SMARTE DETAILS:
Elektrische Rollläden in allen Wohngeschossen für maximalen Komfort
- SICHERHEIT:
Fenster mit Pilzkopfverriegelung und Aufhebel-Hemmung
- ZUKUNFTSSICHER:
Vorbereitung für Ihre eigene Wallbox direkt in der Garage
Darstellung aus Sicht des Illustrators
Nahwärme & Fussbodenheizung
Energiekonzept
In Ihrem neuen Zuhause genießen Sie modernsten Wärmekomfort, der nicht nur behaglich, sondern auch konsequent nachhaltig ist. Statt auf individuelle Heizsysteme im Keller zu setzen, nutzen wir die Kraft der Gemeinschaft: Ihr Haus ist an das moderne Nahwärmenetz der Wärmeversorgung Schwabmünchen angeschlossen.
Diese hocheffiziente Form der Energieversorgung nutzt regionale Abwärme aus aus einem nahegelegenen Kunststoffwerk. Das bedeutet für Sie: Sie heizen nahezu CO2-neutral und leisten einen aktiven Beitrag zum Klimaschutz – direkt vor Ihrer Haustür. Da im Haus keine eigene Therme oder Brennstoffe gelagert werden müssen, gewinnen Sie wertvollen Platz und profitieren von einer extrem wartungsarmen Technik. Ein rund um die Uhr überwachter Notdienst des Versorgers garantiert Ihnen zudem maximale Ausfallsicherheit. So bleibt Ihr Heim immer wohlig warm, während Sie entspannt in die Zukunft blicken können.

Altmühlstraße
Wertachklinik Schwabmünchen
EDEKA
Schwabmünchen
Lage der Immobilie
Die lebendige Kleinstadt Schwabmünchen im Landkreis Augsburg verbindet naturnahes Wohnen mit einer sehr guten Anbindung an die umliegenden Wirtschaftszentren. Rund 15.000 Einwohner genießen hier eine gewachsene Infrastruktur, vielfältige Freizeitmöglichkeiten und die Nähe zur reizvollen Landschaft entlang der Singold. Mehr über die Stadt erfahren Sie unter: www.schwabmünchen.de
Die Bundesstraße B17 verläuft in unmittelbarer Nähe und bringt Autofahrer schnell und komfortabel nach Augsburg oder in Richtung Landsberg am Lech.
Die Autobahn A8 München–Stuttgart ist über die B17 zügig erreichbar und sorgt für eine überregionale Verkehrsanbindung.
Zugfahrer profitieren vom Bahnhof Schwabmünchen an der Bahnstrecke Augsburg–Buchloe. Von hier aus erreichen Pendler den Augsburger Hauptbahnhof in etwa 20 Minuten.
Ergänzt wird die Mobilität durch ein gut ausgebautes Busnetz im Stadtgebiet und in die umliegenden Gemeinden. Mehrere Bushaltestellen befinden sich in komfortabler Nähe zum Baugebiet.
Schwabmünchen überzeugt mit kurzen Wegen im Alltag. Einkaufsmöglichkeiten für den täglichen Bedarf, Ärzte, Apotheken sowie zahlreiche Dienstleister befinden sich im Stadtgebiet und sind schnell erreichbar.
Ihre Ansprechpartnerin
Simone Fink
Gerne steht Ihnen Frau Fink telefonisch oder in einem persönliches Informationsgespräch für all Ihre Fragen zur Verfügung.
Vertrieb
Tel. +49-8231-6006-30
E-Mail: vertrieb@dumberger-bau.de
Kontakt
M. Dumberger Bauunternehmung
GmbH & Co. KG
Hunnenstr. 20
86343 Königsbrunn
Immobilienanfragen:
Tel. +49-8231-6006-30
E-Mail: vertrieb@dumberger-bau.de
Allgemein:
Tel. +49-8231-6006-0
E-Mail: info@dumberger-bau.de
Service
Folgen Sie uns auch auf:







